Medical Equipment
   Medical Gas System
   Wall Care System
   Secondary Device
   Ceiling Column
   Accessories
FORVISION
Location Inquiry E-mail
 

Ceiling Column

   
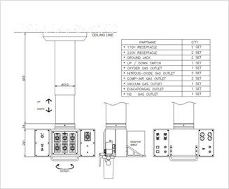
치료상의 문제 또는 벽면에 설치할 수 없는 경우에 천정 면에 설치하여 의료가스 및 전기장치를 사용할 수 있도록 하는 의료 장비로서 수술실, 분만실, 미숙아실 등에 사용됩니다.
 
Plate Jumbo Head
Plate Jumbo Head Plate Jumbo Head
 
※ Feature
- Retractable & Turning Head (360 degree)
- Plate Jumbo Head
- Up, Down Switch
- Electric Powered Type
 
※ Construction
- Guide Body : AL 5.0t baked painting
- Panel : STS 304 1.5t baked painting
- 110V, 220V Electric Consent Outlet and Ground Jack
- O2, N2O, Air, Vacuum Outlet
- Evacuation Outlet (Option)
 
 
 
Plate Jumbo Head Casting Jumbo Head Retractable Head  
 
           
회사소개
인사말
경영이념
회사연혁
조직도
회사소식
제품소개
Medical Equipment
FORVISION
기술현황
품질인증
기술보유
대외인증
고객지원
Q&A
INQUIRY
오시는 길
Medical Gas System
Wall Care System
Secondary Device
Ceiling Column
Accessories
Forvision
           
사업자번호 134-81-56728 대표이사 한종삼
주소 : 인천광역시 서구 원창동 91-10 | 전화 : 032-576-6471~3 | 팩스 : 032-576-6470 | 이메일 : oxyvac@hitel.net | 홈페이지 : www.oxyvac.co.kr
Copyright(c) OXYVAC MEDICAL INSTRUMENT CO., LTD. All Right Reserved